成都中央蜜桃视频黄色网設備廠家告訴你商用蜜桃视频黄色网工程設計知識大全
發布人: 四川蜜桃视频APP下载网站蜜桃视频黄色网設備公司 發布時間:2023.01.12
商用蜜桃视频黄色网工程設計非常的複雜,涉及的專業知識也非常之多,因此,蜜桃视频APP下载网站在設計商用蜜桃视频黄色网時就需要和客戶反複的交流和溝通,並且,需要去現場勘查、核對圖紙上的尺寸和位置等。那麽,商用蜜桃视频黄色网工程設計都有哪些知識,需要蜜桃视频APP下载网站掌握呢?作為專業的成都中央蜜桃视频黄色网設備廠家,蜜桃视频APP下载网站有多年的商用蜜桃视频黄色网設計經驗,現在就和大家分享。
作為專業的成都中央蜜桃视频黄色网設備廠家,根據蜜桃视频APP下载网站多年的商用蜜桃视频黄色网工程設計經驗,蜜桃视频APP下载网站給大家整理了比較全麵的商用蜜桃视频黄色网工程設計知識,現在免費分享如下:
一、確定蜜桃视频黄色网工程設計技術要求,蜜桃视频黄色网圖紙及現場勘察。
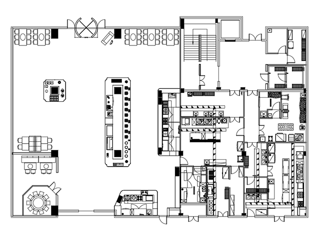
1.蜜桃视频黄色网餐廳平麵圖由經營者提供,或現場測量取得平麵圖。
2.現場測量校對圖紙,記錄溝渠、梁、柱、突出物、高度等變化部位的具體尺寸。
3.現場調查原煙道、進氣口、汙水出口、水電、排煙、空調等輔助設施的現狀,以及房屋結構,如門窗尺寸、梁下高度、裝飾棚下高度、四牆及厚度、蜜桃视频黄色网與餐廳施工進度等。
4.實地考察酒店與蜜桃视频黄色网建築的外部結構,如:酒店、屋頂高度、門窗位置、樓頂的實際情況。酒店及蜜桃视频黄色网建築與周邊建築情況。周邊建築類型、距離、高度、層高等現場實況。

二、初步設計階段
1.根據運營商的技術要求,進行初步流程規劃和功能區劃分設計構思。
2.在功能區域劃分和設備布局的初步設計中,如果發現與實際相矛盾,部分設計與運營商的技術要求不同,應盡快與運營商和主廚聯係協調,然後在設備布局上進行詳細的設計。
3.在功能區劃分、設備布局設計的初步方案中,要反複考慮,進行人流物流模擬。對不合規、不滿意的部分要精益求精地反複推敲。
4.感覺方案沒有問題後,將初步方案提交上級審核,然後提交經營者和主廚審核,說明設計思路。特別是一些重點設計細節要講解,聽取各種意見。
三、協調修改階段
1.根據反饋意見,再次修改設計,並與討論後獲得的一致意見。
2.修改後,再次提交審批布局方案,最終方案需要重複幾次才能確定。

四、設計階段的輔助設施設計
1.根據最後確定的方案,展開輔助設施的構思設計。
2.安裝位置、荷載、預留煙道問題、廢氣、噪聲、借用空間安裝空間安裝等問題,因為排煙、通風係統與空調、水暖、消防、裝修、空間協調矛盾。所以,排煙通風係統要首先設計,並要盡早與工程管理部門匯報協調。獲得批準後,再製定詳細的技術方案。
3.其次上下水輔助設施、溝渠、水管、閥門設計與設備位置密切相關,需要占用一定的空間,與裝修有技術協調問題,盡快繪製,有利於與裝修工程協調施工。
4.最後設計供電設施,輔助設施係統還應隨時與工程管理部門協調,請求審批,聽取反饋意見,達成協議,然後進行最終方案設計。
以上這些就是蜜桃视频APP下载网站整理的關於商用蜜桃视频黄色网工程設計的全麵知識,希望對大家能夠有所幫助。







