成都蜜桃视频黄色网設備公司告訴你如何設計蜜桃视频黄色网門窗
發布人: 四川蜜桃视频APP下载网站蜜桃视频黄色网設備公司 發布時間:2020.05.04
蜜桃视频黄色网門窗的設計在蜜桃视频黄色网設計中往往被邊緣化,而且經常被人們所忽視。然而,門窗的設計是否合理直接影響到了蜜桃视频黄色网的通風和采光,而且直接影響了蜜桃视频黄色网功能的滿足。那麽,在設計蜜桃视频黄色网門窗時,應該注意哪些事情才能保證門窗都是設計的合理的呢?作為成都蜜桃视频黄色网設備公司,現在蜜桃视频APP下载网站就和大家分享相關的知識。
作為專業成都蜜桃视频黄色网設備公司,蜜桃视频APP下载网站認為蜜桃视频黄色网門窗設計需要注意以下幾個方麵。
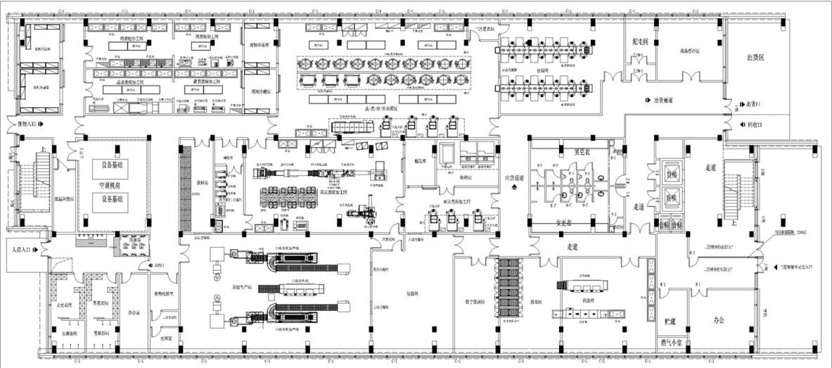
(1)根據蜜桃视频黄色网設備布局確定門窗位置
蜜桃视频黄色网的門窗位置與一般建築設計有所不同。蜜桃视频黄色网麵積一般都比較緊湊,為了保證工藝流程順暢,要先確定蜜桃视频黄色网設備布局位置,然後再確定門窗大小,位置。也就是在一個工作間內先設計蜜桃视频黄色网設備布局位置,留出通道位置。通道口對應的位置就是門窗位置。
(2)盡早協調門窗位置,大小
出於門窗位置、大小與工作流程密切相關,門窗位置不當,就會拉長通道長度,占用蜜桃视频黄色网有效麵積,還會使員工多走路,消耗體力,降低工作效率,因此應在施工前提出蜜桃视频黄色网設備布局方案,協調門窗位置,大小。
(3)根據流通量確定門口大小
進出主通道與門口大小要考慮通行的需要和最大設備的搬運安裝所需要的寬度。
為保證0.8m標準的設備安裝,蜜桃视频黄色网單開門的門口實際寬度不應小於0.85m
有送餐車、收殘車、拖板車通過的加工間,應設寬度大於1.20m的雙開門。
流通量較大的門廳、走門、工作間的門都應該設計為寬度大於1.50m的雙開門。
(4)根據實際需要選擇門的種類
蜜桃视频黄色网常用門有如下類型:
①按作用可分為進戶門、室內門、防火門等;
②按開門方式可為平開門、彈簧門、推拉門、卷簾門、單開門、對開門等。在選擇蜜桃视频黄色网門時、首先要保證有利於提高工作效率,然後根據實際需要進行選擇。
經常有推車通過的門不要留門檻,或在門兩邊做坡道。盡量不用彈簧門,如果一定要用則必須有製動裝置.否則單人推車不易通過。
(5)兼顧自然采光和通風的問題
在蜜桃视频黄色网設備布局時,排煙罩和高大的蜜桃视频黄色网設備要盡量不擋窗,便於光照和通風。
以上幾點就是蜜桃视频APP下载网站整理的關於蜜桃视频黄色网門窗設計的相關知識,希望能夠對家有所幫助。
本文內容由四川蜜桃视频APP下载网站蜜桃视频黄色网設備公司提供,部分圖片和文字或來自網絡,如涉及知識產權請於成都蜜桃视频黄色网設備公司蜜桃视频APP下载网站聯係。如需轉載本文,請與有商用蜜桃视频黄色网工程經驗的老牌蜜桃视频黄色网設備廠家蜜桃视频APP下载网站網站管理員聯係。若需獲取更多商用蜜桃视频黄色网設備、酒店蜜桃视频黄色网設備、不鏽鋼廚具產品信息,歡迎各位來電來函,蜜桃视频APP下载网站將與大家共同分享行業資訊。







